2 bedrooms duplex apartment with 91sqm garden | modernly furnished


  • 2 Bedrooms
  • 2 Baths
  • 155 sqm built
Description

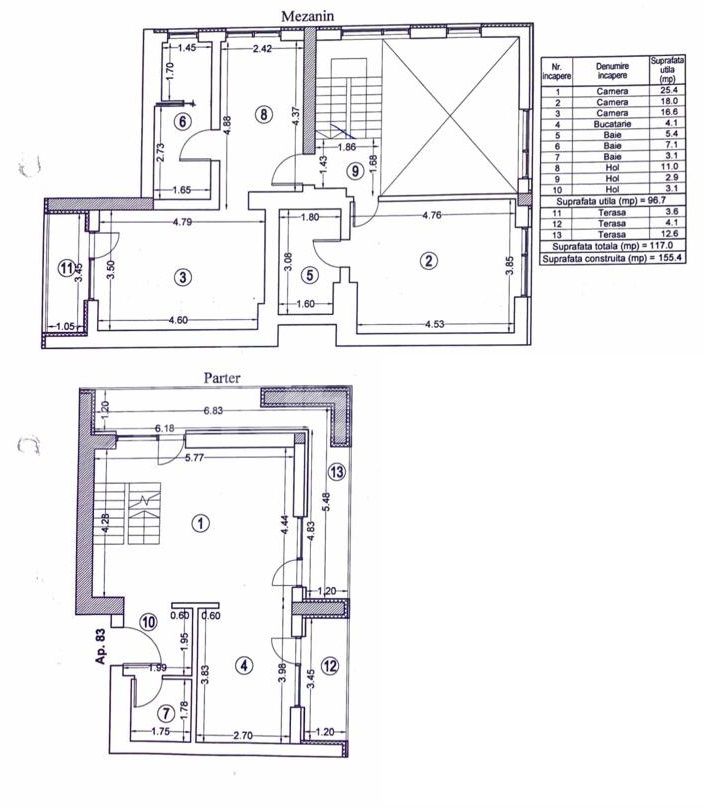
Located in Aviatiei area, a short distance from Aurel Vlaicu metro station and Pipera - Barbu Vacarescu business area, this 2 bedrooms duplex apartment s disposed on 2levels (GF + mezzanine) of an Ug+Gf+11 building.
The built area is 155sqm of which 97sqm usable and 20sqm terraces. It also has 91sqm garden.
The ground floor consists of living room with access to the garden, open and fully equipped kitchen and guest toilet.
On the mezzanine floor is the master bedroom with en-suite bathroom, sauna and dressing area and secondary bedroom with en-suite bathroom.
The price includes 1 outdoor parking space and separately can be rent / purchase 2 more (100Euro + VAT / place or 25,000 Euro + VAT / place).
It is fully finished and furnished with high quality materials such as marble, wood, stone and Filomuro doors.
It can be rented both for office and for residence for 3500Euro+VAT/month.

Floor Plans
€ 575.000+VAT
€ 3.500+VAT/month
  • 1855314, Aviatiei

    2 bedrooms duplex apartment with 91sqm garden | modernly furnished

Similar Properties


€ 1500/month
  • 1 Bedrooms
  • 1 Baths
  • 71 sqm

Placed in a modern residential compound with a spectacular garden, close to Herastrau Park, this 1 bedroom apartment is at the 5th floor in an Ug+Gf+9 building finalized in 2009. It has a total... Read more

€ 3200/month+VAT
  • 3 Bedrooms
  • 3 Baths
  • 0 sqm

Located in Herastrau - Aviatiei area, a short distance from Herastrau Park, this 3 bedrooms apartment is on the 7th floor of a 2Ug+Gf+12 building completed in 2021. It has a built area of 150sqm of... Read more

€ 1000/month+VAT
  • 1 Bedrooms
  • 2 Baths
  • 65 sqm

Located in Aviatiei area, in a residential complex, this 1 bedroom apartment is located on the 2rd floor of a Ug+GF+10 building. It has a built area of 65sqm of which 56sqm usable and 5sqm... Read more